设计师:王春燕 案例:99+套
作品:99+套 概念:99+套
壹视界室内设计事务所执行总监
中国室内装饰设计协会注册设计师
高级室内设计师
国际注册室内设计协会认证会员(ICDA)
北京清华大学(软装与陈列设计)
台湾大学(企业家创新管理)
【 高端别墅设计:活力大宅 】

“每一种风格是独一无二的
同时,也是包容的
多重风格的完美融合
不仅能将各自的美发挥至淋漓尽致
更是比单一的风格更吸引人眼”
奢华与时尚间活出另一种灵魂——活力·大宅

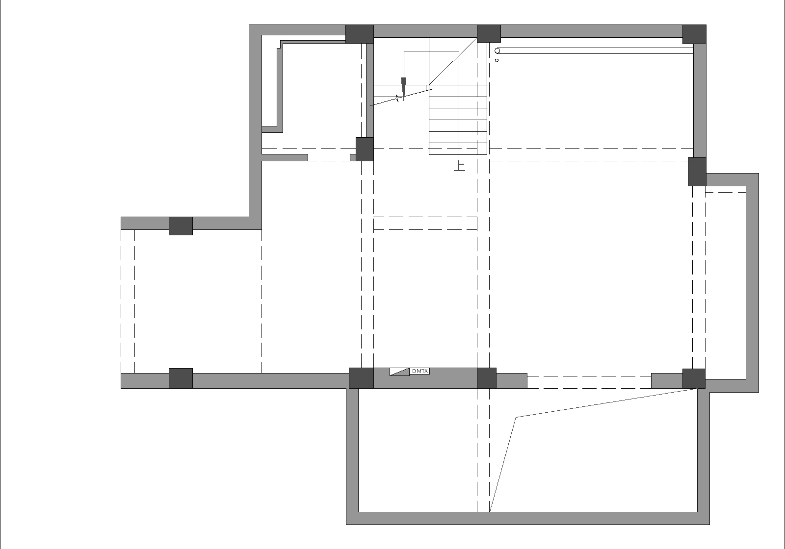
▲负一层改建过程
改造时,为了提高负一层自然照明率及通风率,在入口上方增建了天窗

负一层的主要功能为休闲娱乐,考虑到业主的女儿正在学习芭蕾舞,负一层设计了大面积落地镜以提供练舞房功能,而楼梯旁设计的滑梯让整个空间更具趣味性。

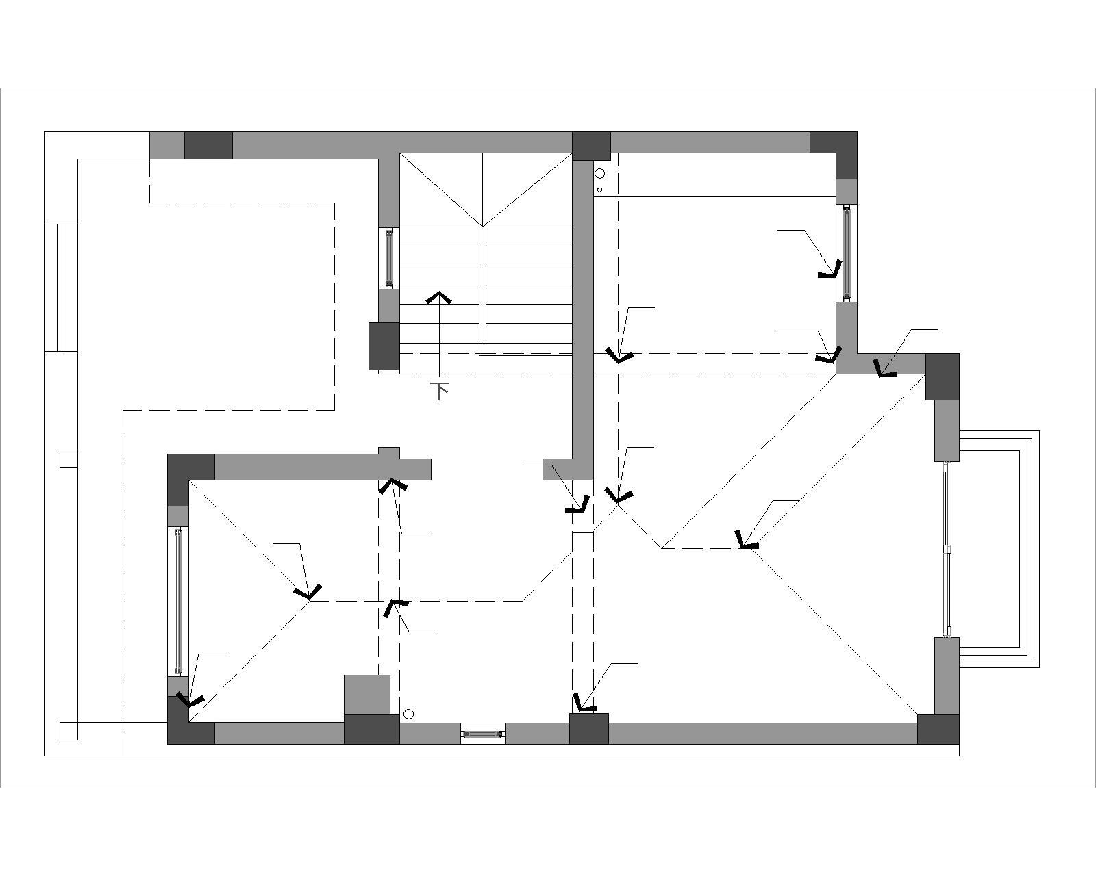
▲一层改建过程
一层将东南角补齐,化解了风水上的不足



作为面向客人的一层空间,设计师为它注入了更多跳脱的色彩,在浅灰色墙面与木色、米色系地面的低调氛围中,橙色沙发、果绿色丝绒椅、缤纷的艺术品,再加上庭院生机勃勃的大型植物,令人一进门就忍不住产生对一切美好事物的幻想。
采用中西厨分开的设计手法,保证了中厨的独立性和外部区域完整性。室外庭院可以举行烧烤、酒会等小型聚会活动,大大的增强了场地的实用性。
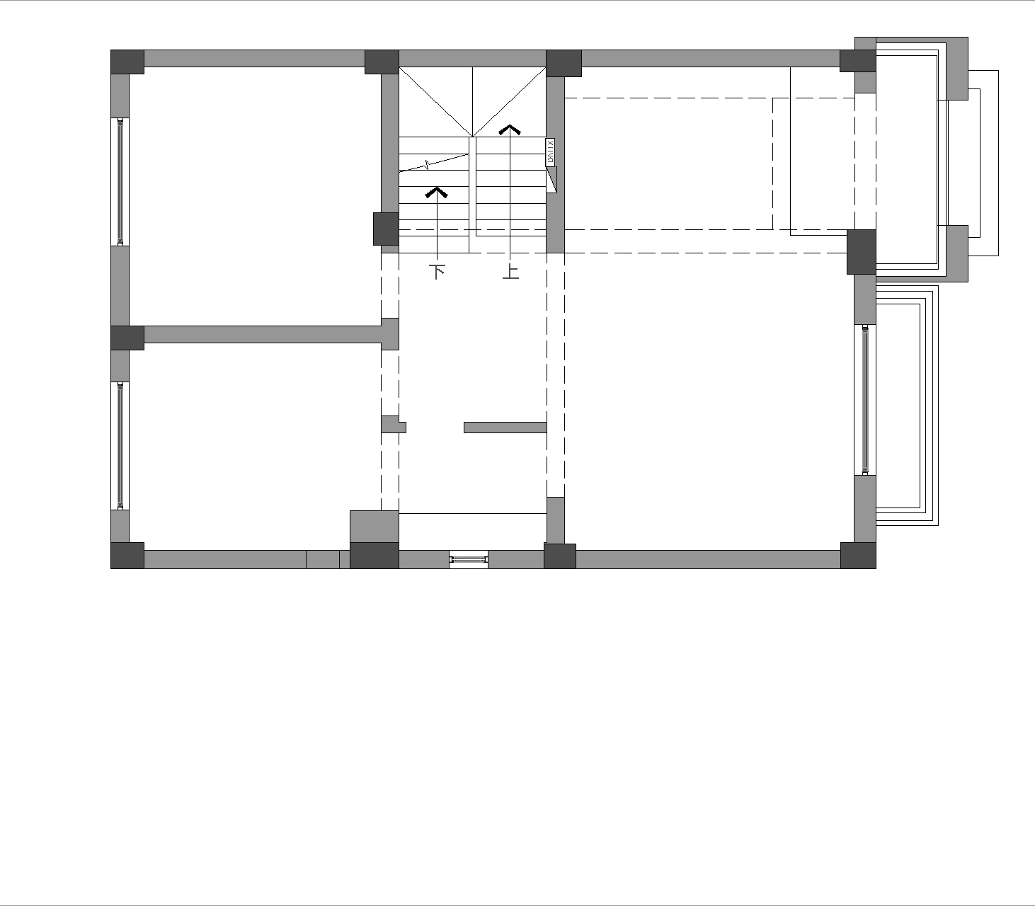
▲二层改建过程
延续一层平面的方正,二层南面加建了大面积平台,使室内外空间连通,让人与自然产生更好的情绪互动。

▲三层改建过程
三层将室外露台包容到室内,提高整体舒适度。


建筑的特殊屋顶使主卧形成了一个高挑的空间,床背板的几何造型与吊顶呼应,如同云朵般漂浮悬挂的灯饰,以及大胆的色彩运用,共同营造出一场浪漫梦境。

在主卫,黑白灰菱形大理石拼花地面配灰调线条是设计师擅长的现代法式风格,亮色的装饰与植物带来了生机与活力。在这个空间里色彩和形状都很出彩,与大胆的布艺家具和别墅的经典马赛克地砖形成了很好的互补效果。

▲建筑外立面
设计,不仅仅是打造一种风格。每个人对奢华的定义不同,对未来的期待不同,便有了各具特色的家。
壹视界设计团队致力于为中国精英阶层定制独有的高端住宅空间,主张设计的多变性及创新性。在全国多地完成众多私人别墅府邸及商业空间设计项目。
已有888位业主获取报价